jebbear 386 #1 Posted November 22, 2018 Working on my 856 project and would like to add some type of fuse or fusible link into the starter electrical system just as a safeguard. My original starter got fried before I started my overall restoration and was one of the main contributing factors in launching the rebuild. What happened was something somewhere, either in the regulator or starter, must have stuck and actually cooked everything, I believe while it was parked. Not a good situation. It cooked the armature, the regulator, and some of the wiring. So my question, have any of you performed this task by adding a fuse in a tractor of this vintage that did not come with some type of fuse in the original design? I read an excellent post that @953 nut has in the reference section on electrical systems in general and mentioned adding fuses. My system uses the starter/generator without any solenoid and didn't see reference to adding a fuse in this system. Is this doable and what type of fuse would be the preferred MO, where do you put it, and what type of mount or in-line system have you guys used? I guess that I'm confident and capable of doing the work, but I'm a little "electrically challenged" in the design phase of this stuff. Thanks. Share this post Link to post Share on other sites
ebinmaine 78,779 #2 Posted November 22, 2018 Following.... Share this post Link to post Share on other sites
953 nut 66,000 #3 Posted November 22, 2018 (edited) This is an excellent thought and one that probably should be used on all garden tractors. Summit Racing (and others) has an in line sixty amp fuse holder with 6 gauge wire that could be connected between the battery and the "B" terminal on older ignition switches, or between the battery and solenoid on newer systems. This should protect the whole system in the event of a short to ground in the switch or solenoid. https://www.summitracing.com/parts/bss-hhx?seid=srese1&cm_mmc=pla-google-_-shopping-_-srese1-_-bussmann&gclid=Cj0KCQiAxNnfBRDwARIsAJlH29Bdi73Kev87Y9qN7WsAnI4n-uvQdswDywGGWOmLjs4l0p08QDPjYMQaAtzgEALw_wcB Edited November 22, 2018 by 953 nut correct an error. 2 1 Share this post Link to post Share on other sites
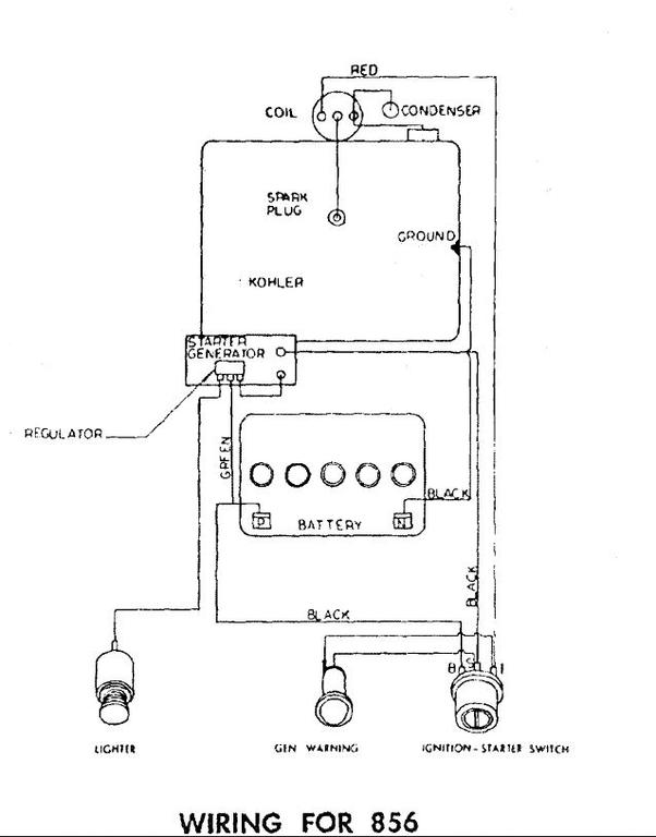
jebbear 386 #4 Posted November 22, 2018 (edited) 1 hour ago, 953 nut said: Summit Racing (and others) has an in line sixty amp fuse holder with 6 gauge wire that could be connected between the battery and the "S" terminal on older ignition switches, or between the battery and solenoid on newer systems. Thanks @953 nut. Just want to verify, is 60 amp the right fuse rating to use for this modification since the other illustrations that you so graciously furnished indicate a 30 amp with a solenoid circuit? Don't want to over-rate the fuse, in other words, don't want to put a penny in the fuse socket. https://www.wheelhorseforum.com/topic/75714-wiring-diagrams-to-help-you-understand-how-it-is-done/ Edited November 22, 2018 by jebbear Share this post Link to post Share on other sites
jebbear 386 #5 Posted November 22, 2018 And along this topic line, does anyone have an opinion or diagnosis as to what may have happened originally in my case to cause this barbecue to happen? Did something stick in the regulator to cause this thing to short circuit or apply some load even while the tractor was parked? Will the above modification protect the tractor in all cases? I'm just trying to determine contributing factors because I sure don't want to cook another starter/generator if by some fluke coincidence this could happen again. After this originally happened, my dad had installed a little knife switch in the battery negative (ground) lead to break the circuit while parked. This seemed to work fine and killed all power to everything, but was always just a pain to engage the knife switch every time the tractor was used. Just trying to eliminate this switch if a fuse will do the trick. Share this post Link to post Share on other sites
WHNJ701 4,172 #6 Posted November 22, 2018 20 minutes ago, jebbear said: Did something stick in the regulator to cause this thing to short circuit or apply some load even while the tractor was parked? mouse pee Share this post Link to post Share on other sites
pfrederi 20,532 #7 Posted November 22, 2018 2 hours ago, 953 nut said: This is an excellent thought and one that probably should be used on all garden tractors. Summit Racing (and others) has an in line sixty amp fuse holder with 6 gauge wire that could be connected between the battery and the "S" terminal on older ignition switches, or between the battery and solenoid on newer systems. This should protect the whole system in the event of a short to ground in the switch or solenoid. https://www.summitracing.com/parts/bss-hhx?seid=srese1&cm_mmc=pla-google-_-shopping-_-srese1-_-bussmann&gclid=Cj0KCQiAxNnfBRDwARIsAJlH29Bdi73Kev87Y9qN7WsAnI4n-uvQdswDywGGWOmLjs4l0p08QDPjYMQaAtzgEALw_wcB I would add to 953nuts suggestion you might also want a fuse about 20 amps in the green wire from the battery to the regulator in case something (the cutout) in the regulator fails. 1 Share this post Link to post Share on other sites
jebbear 386 #8 Posted November 22, 2018 2 minutes ago, pfrederi said: I would add to 953nuts suggestion you might also want a fuse about 20 amps in the green wire from the battery to the regulator in case something (the cutout) in the regulator fails. That is exactly what I was getting at. I was afraid that just killing the battery positive may not kill the current if the problem originated in the smaller regulator wiring or the windings in the starter itself. Forgive my ignorance of electricity, but as someone on here so eloquently stated, that since these things apparently run on "smoke", I need to find a way to keep the "smoke" inside of the system and not let it escape! 1 Share this post Link to post Share on other sites
jebbear 386 #9 Posted November 22, 2018 4 hours ago, 953 nut said: ...in line sixty amp fuse holder with 6 gauge wire that could be connected between the battery and the "S" terminal on older ignition switches Just to clarify, if I am reading these schematics correctly, did you mean between the "battery" and the "B" terminal or between the "starter" and the "S" terminal? Share this post Link to post Share on other sites
953 nut 66,000 #10 Posted November 22, 2018 21 minutes ago, jebbear said: between the "battery" and the "B" terminal My Bad. Should have been "B" and I will correct this in the previous post 5 hours ago, 953 nut said: between the battery and the "S" terminal This will remove all battery power from the rest of the electrical components in the event of a high amperage short to ground. I like Paul's @pfrederi idea of a fuse for the wire from regulator "BAT" terminal to the Battery "+". As far as the cause of the short and resulting meltdown of your electrical system It may be some insulation that had chafed or been eaten away by a mouse and went to ground. If that knife switch had been opened it should have prevented the short from happening. I prefer fuses because there is no operator action required. 3 hours ago, jebbear said: Just want to verify, is 60 amp the right fuse rating to use for this modification since the other illustrations that you so graciously furnished indicate a 30 amp with a solenoid circuit? A 30 amp fuse will not handle the current draw of the starter. The 30 amp fuse in this drawing is protecting the wiring beyond the ignition switch, the power to the starter is switched through the solenoid. 1 Share this post Link to post Share on other sites
ebinmaine 78,779 #11 Posted November 22, 2018 7 minutes ago, 953 nut said: My Bad. Should have been "B" and I will correct this in the previous post This will remove all battery power from the rest of the electrical components in the event of a high amperage short to ground. I like Paul's @pfrederi idea of a fuse for the wire from regulator "BAT" terminal to the Battery "+". As far as the cause of the short and resulting meltdown of your electrical system It may be some insulation that had chafed or been eaten away by a mouse and went to ground. If that knife switch had been opened it should have prevented the short from happening. I prefer fuses because there is no operator action required. A 30 amp fuse will not handle the current draw of the starter. The 30 amp fuse in this drawing is protecting the wiring beyond the ignition switch, the power to the starter is switched through the solenoid. All good info Dick. And thanks to Paul @pfrederi as well. I'll use these on my own tractors. Share this post Link to post Share on other sites
jebbear 386 #12 Posted November 22, 2018 44 minutes ago, 953 nut said: If that knife switch had been opened... Agreed. The knife switch my dad added AFTER the initial burn up to try and keep it from happening to the replacement parts. Thank-you for your expertise and assistance with this, I plan on using your recommendation in this circuit along with @pfrederi ‘s tip on the green wire fuse. Awesome! 1 Share this post Link to post Share on other sites