Latebraker 0 #1 Posted March 17, 2015 Hi I have a 312-8 in the UK. The starter switch will not operate the starter motor. The first turn puts the ignition on (volt meter works etc) however when you turn the key to the spring loaded section, no starter motor. I know the starter works because I've shorted across the solenoid and started it that way. Any thoughts? Does it require the seat switch etc to be working? Thanks for any help. Share this post Link to post Share on other sites
rmaynard 17,169 #2 Posted March 17, 2015 What is the ID number on the 312-8? I will post a "spark" circuit diagram. Usually the "spark" circuit does have some interlocks in it for your protection. Share this post Link to post Share on other sites
KC9KAS 4,746 #3 Posted March 17, 2015 Latebreaker, and Share this post Link to post Share on other sites
Latebraker 0 #4 Posted March 17, 2015 Hi Bob Thanks for replying. I have a 21-12K804. Richard. Share this post Link to post Share on other sites
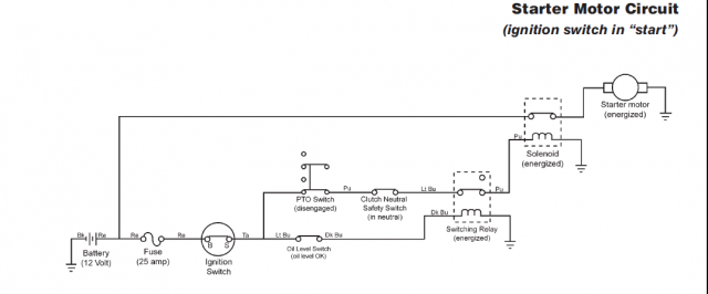
rmaynard 17,169 #5 Posted March 18, 2015 Okay, here are the individual spark, start circuits, plus a complete wiring diagram. Share this post Link to post Share on other sites
Latebraker 0 #6 Posted March 18, 2015 Thanks for that Bob. Will have a look. Share this post Link to post Share on other sites