Jump to content
82Caddy

K181S Commando 800 Dead

Recommended Posts

82Caddy

Hi Wheel horse gurus,

 

I'm in a bit of a pickle with my 72 commando 800.  It has the Kohler 181 and was working excellent pushing snow when it just shut down like the key was turned off.  I knew I was getting low on fuel and figured that was the problem.  Nope, plenty of fuel.  Go to restart and nothing.  No click from the starter, nothing.  Until last night I had zero starting issues and everything worked as it should.

 

I guess my question is this, I know there is are wiring diagrams floating around somewhere and I found them once and now I can't seem to locate the diagrams again.  I should have bookmarked it when I found it.  The wiring is pretty hacked together but worked so I didn't want to mess with it.  One of those, if it isn't broke don't fix it deals.  I had plans to fix this up over next summer but it needs attention now.

 

Next question is where can I find an ignition switch pigtail or a whole new one?  Locally I have a Mills Fleet Farm and Tractor Supply but those only seem to contain generic switches.  The local small engine places just laugh at me when I ask for wheel horse and old kohler engine parts.

 

Thanks!

 

Pics for entertainment:

 

15495442351_e987b3bf82_o.jpg

 

15311682839_56e71071a0_o.jpg

 

15311683429_629672d8f0_o.jpg

Share this post


Link to post
Share on other sites
 
rmaynard

While I find you a wiring diagram, go check the battery cables to be sure they are securely tightened to the battery. Then check the ground cable from the battery to the engine. Then check the wire to the + side of the coil.  If it just stopped suddenly, you either have a lack of fuel (maybe fuel pump), of lack of 12 volts to the coil.

 

However, you said no clicking from the starter which takes me right back to the battery/cables.

 

post-2221-0-53803600-1417208019_thumb.pn

 

Not the best image, but all that I can find at the moment.

 

Edited by rmaynard
  • Like 1

Share this post


Link to post
Share on other sites
 
Racinbob

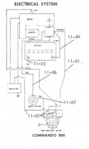
:text-yeahthat: Definitely start with those steps. This might be a bit clearer.

post-8408-0-67796600-1417209227_thumb.jp

Share this post


Link to post
Share on other sites
 
82Caddy

Thanks for the suggestion guys.

 

I know the battery cables are tight.  I did look at that first.  I didn't check for voltage anywhere I was just frustrated and wanted the snow off the driveway.  I'll dig some more into it tonight.

Share this post


Link to post
Share on other sites
 
wallfish

You can find a pigtail here

http://www.psep.biz/store/lawn_mower_parts.htm

 

They also sell the switches, you'll need a 3 position switch for a BATTERY ignition engine

Share this post


Link to post
Share on other sites
 
82Caddy

Problem found. Used the wiring diagram posted above and found a broken wire and two more with the protective covering worn off. Replaced those wires and it fired right up.

Thanks for the help and suggestions.

Share this post


Link to post
Share on other sites
 

Create an account or sign in to comment

You need to be a member in order to leave a comment

Create an account

Sign up for a new account in our community. It's easy!

Register a new account

Sign in

Already have an account? Sign in here.

Sign In Now

×
×
  • Create New...