About This File
Operator manual #810437R1 - Correct oil capacities for single cylinder Kohler engines
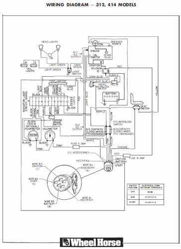
Wiring
33 pages 2.19MB
First year for low oil switch and relay on 414-8.
This manual replaced #810399R1 and shows the correct engine oil capacity for the low oil switch on single cylinder Kohler models.
May apply to the 512-D diesel model except for engine and wiring.
Lube chart SS
1986 414-8 model 31-14K801 - (3 amp unregulated dual circuit charging system)
1986 416-8 model 31-16K802 - (15 amp regulated charging system)
1986 417-8 model 31-17K802 - (15 amp regulated charging system)
1986 417-A model 31-17KE02 - (15 amp regulated charging system)
1986 420-LSE model 31-20KE01 - (15 amp regulated charging system)
Operator manual #810399R1 - Better copy but replaced by #810437R1 which includes the 420-LSE
38 pages 2.82MB
